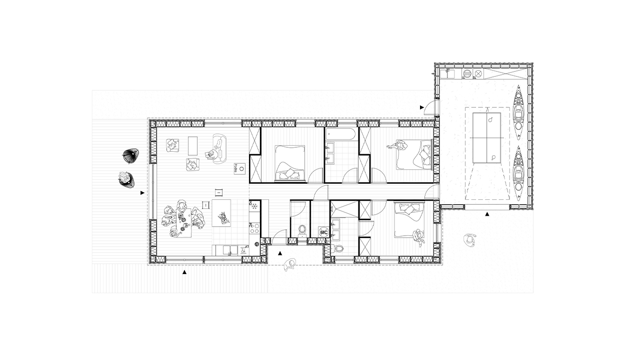
Maison LY

Lieu : Trégunc (29)

Maîtrise d’ouvrage : Privé

Équipe : GLAD

Autres acteurs : –

Programme : Divisions parcellaires et création de deux Maisons

Mission : Conseils + ESQ

Calendrier : 2024

© 2026 • GLAD architecture • Tout droits réservés

error: