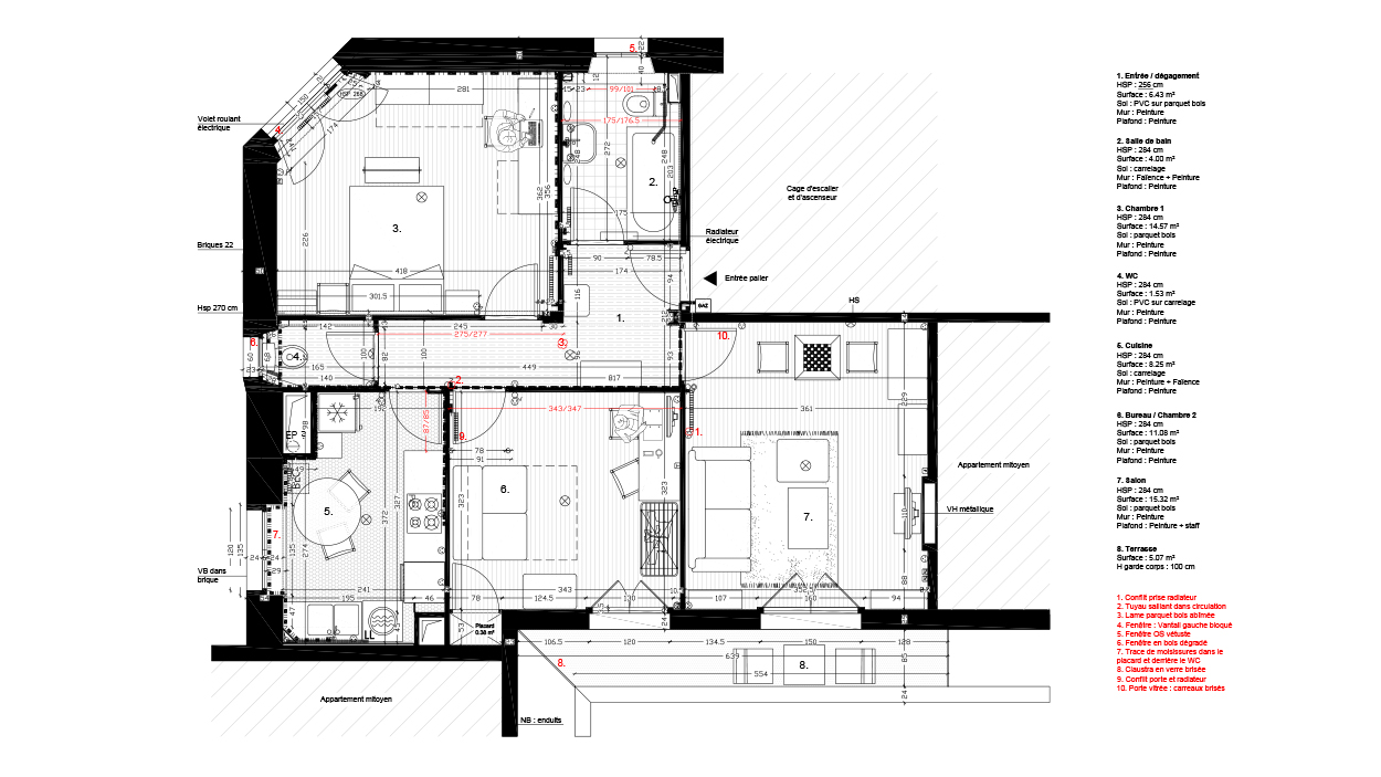
Appartement C

Lieu : Rennes

Maîtrise d’ouvrage : Privé

Équipe : GLAD

Autres acteurs : –

Programme : Relevé d’un appartement

Mission : Relevé

Calendrier : 2025

© 2026 • GLAD architecture • Tout droits réservés

error: